Das Projekt in Zeiten den Pandemie

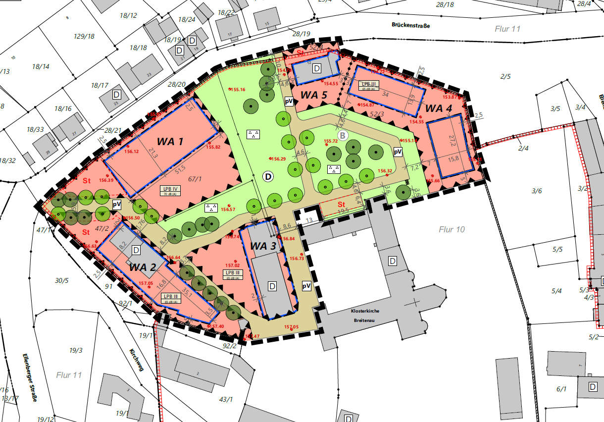
Als wir Anfang 2019 den Masterplan vorgestellt haben und im August 2019 am Tag der offenen Tür auf so viele Interessierte gestoßen sind, waren wir voller Hoffnung, dass wir zeitnah mit dem Projekt beginnen könnten. Wir wussten zu diesem Zeitpunkt nicht, was auf uns zukommen würde. Was für zwei Jahre liegen hinter uns! Corona hat unser berufliches und gesellschaftliches Leben komplett auf den Kopf gestellt. Auf vieles, was uns lieb und teuer geworden ist, müssen wir verzichten. Das hat auch unsere ursprüngliche Projektplanung und den Zeitplan erheblich verzögert. Die Gemeinde hatte uns ja aufgefordert, einen Bebauungsplan vorzulegen, dessen Bearbeitung und Genehmigung sich durch die Corona-Beschränkungen fast zwei Jahre hinausgezögert hat und noch nicht von Seiten der mitwirkenden Behörden genehmigt wurde.

Wir haben viele Interessenten für das Projekt und viele Nachfragen, wann es nun weitergehen wird. Wir hoffen, dass wir im Frühjahr mit einem positiven Bescheid zur B-Planung seitens der Gremien rechnen können.

Interessiert am Projekt? Tragen Sie sich ein und wir halten Sie auf dem aktuellen Stand.